| Prijs | € 1.155.000,- k.k. |
| Type object | Woonhuis, villa, vrijstaande woning |
| Perceeloppervlakte | 1.195 m² |
| Woonoppervlakte | 242,7 m² |
| Aanvaarding | In overleg |
| Status | Verkocht onder voorbehoud |
Moderne villa met luxe afwerking en tijdloze elegantie aan de Zeeuws-Vlaamse kust Aan de rand van de geliefde kustplaats Breskens, in de moderne wijk De Roode Polder, staat deze bijzondere vrijstaande villa. Een huis waarin eigentijdse architectuur, licht en leefruimte harmonieus samenkomen. De strakke vormgeving, grote glaspartijen en het gebruik van natuurlijke materialen geven de woning een open en serene uitstraling. Binnen draait alles om licht en verbinding. De hoge ramen brengen de tuin naar binnen en zorgen voor een voortdurend spel van daglicht. Vanuit de ruimtes op de eerste verdieping en het dakterras ontvouwt zich een prachtig uitzicht over het uitgestrekte landschap — een decor dat elk seizoen verandert. De ligging is ideaal: rustig, ruim en op korte afstand van strand, jachthaven en voorzieningen. Hier woont u in alle comfort, met de zee binnen handbereik en de rust van het land als dagelijkse achtergrond.
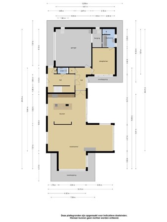
De royale entreehal vormt het hart van de woning: hoog, licht en met een directe doorkijk naar de tuin. Hier bevinden zich de garderobe, het toilet en de trapopgang naar boven. De grote glaspartijen en de vide boven de zithoek geven al bij binnenkomst een indrukwekkend gevoel van ruimte. Aan de rechterzijde ligt het leefgedeelte, waar de moderne open keuken en woonkamer in elkaar overlopen. De keuken is een echte eyecatcher met een groot kookeiland, hoogwaardige inbouwapparatuur (waaronder Miele), een Quooker en een inductiekookplaat met geïntegreerde wokbrander. Dankzij de grote ramen en schuifpuien staat de keuken in verbinding met de tuin, het terras en de eetruimte. De woonkamer biedt meerdere gezellige zithoeken, waaronder een sfeervolle zitkamer bij de gashaard en een tweede loungehoek aan de achterzijde van de woning. De combinatie van hoogte, lichtinval en zichtlijnen maakt dit een leefruimte met een ontspannen en luxueuze uitstraling. Aan de linkerzijde van de hal ligt een ruime slaapkamer met directe toegang tot de tuin. Aangrenzend bevindt zich een luxe badkamer met ligbad, inloopdouche en wastafelmeubel — ideaal als master bedroom of gastenverblijf op de begane grond. Daarnaast biedt deze zijde toegang tot de dubbele inpandige garage, die ook via de oprit bereikbaar is.
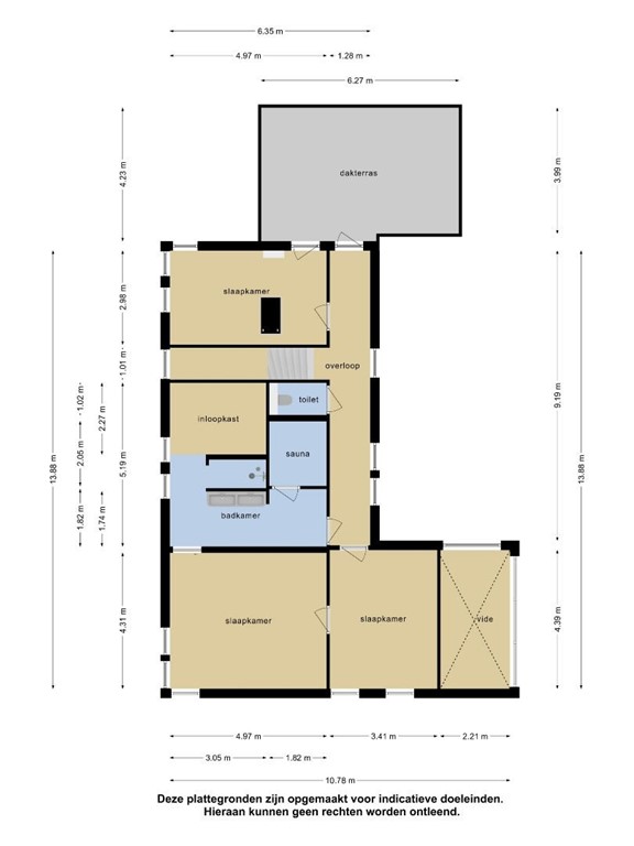
De brede overloop heeft een lichte, open uitstraling en biedt toegang tot de diverse vertrekken. Er zijn twee ruime slaapkamers, een separaat toilet en een multifunctionele ruimte die momenteel als kantoor wordt gebruikt, maar ook perfect dienst kan doen als hobbyruimte of speelkamer. De tweede badkamer is voorzien van een inloopdouche, dubbele wastafel en een Finse sauna — een heerlijke plek om te ontspannen. De hoofdslaapkamer grenst direct aan deze badkamer en beschikt over een eigen inloopkast. Vanuit deze verdieping én het dakterras heeft u fraai uitzicht over het open Zeeuws-Vlaamse landschap.
Via een vlizotrap is de zolderverdieping bereikbaar. Deze ruimte is ideaal als bergzolder voor koffers, seizoensspullen of archief.
De tuin rondom de villa is zorgvuldig ontworpen en sluit naadloos aan op de moderne architectuur. Strakke lijnen, groenaccenten en natuurlijke materialen zorgen voor een stijlvolle buitenruimte. Er zijn meerdere terrassen waar u op elk moment van de dag kunt genieten van zon of schaduw. Een moderne vijver en een overdekte lounge met buitenhaard maken het buitenleven compleet — een plek waar u zomer én winter kunt ontspannen. De tuin biedt veel privacy en is onderhoudsarm aangelegd. Aan de voorzijde bevindt zich een brede oprit met parkeerruimte voor meerdere auto’s en toegang tot de dubbele garage.
- Vrijstaande designvilla met eigentijdse architectuur - Rustige ligging nabij strand, jachthaven en voorzieningen - Slaapkamer en badkamer op de begane grond - Dubbele inpandige garage en royale oprit - Domotica- en alarmsysteem aanwezig - Verwarmingssysteem met warmtepomp en zonnepanelen - Grotendeels voorzien van vloerverwarming - Centraal stofzuigsysteem - Onder architectuur aangelegde tuin met buitenhaard en vijver Vraagprijs 1.155.000, - kosten koper
| Referentienummer | 00731 |
| Vraagprijs | € 1.155.000,- k.k. |
| Elektra | € 2,63 |
| Water | € 16,72 |
| Inrichting | Ja |
| Inrichting | Gestoffeerd |
| Status | Verkocht onder voorbehoud |
| Aanvaarding | In overleg |
| Aangeboden sinds | Zondag 12 oktober 2025 |
| Laatste wijziging | Zaterdag 9 mei 2026 |
| Type object | Woonhuis, villa, vrijstaande woning |
| Soort bouw | Bestaande bouw |
| Bouwperiode | 2013 |
| Dakbedekking | Dakpannen Keramisch |
| Type dak | Schilddak |
| Keurmerken | Energie prestatie advies |
| Isolatievormen | HR-glas Spouwmuren Volledig geïsoleerd |
| Perceeloppervlakte | 1.195 m² |
| Woonoppervlakte | 242,7 m² |
| Woonkameroppervlakte | 93,41 m² |
| Keukenoppervlakte | 32,94 m² |
| Inhoud | 999 m³ |
| Oppervlakte overige inpandige ruimten | 41,1 m² |
| Oppervlakte externe bergruimte | 15 m² |
| Oppervlakte gebouwgebonden buitenruimte | 25,02 m² |
| Aantal bouwlagen | 2 |
| Aantal kamers | 5 (waarvan 4 slaapkamers) |
| Aantal badkamers | 2 (en 2 aparte toiletten) |
| Ligging | Aan rustige weg Dichtbij openbaar vervoer In woonwijk Nabij school Open ligging Platteland |
| Type | Tuin rondom |
| Hoofdtuin | Ja |
| Oriëntering | Oosten |
| Heeft een achterom | Ja |
| Staat | Aangelegd onder architectuur |
| Energielabel | A |
| Aantal parkeerplaatsen | 2 |
| Warm water | Elektrische boiler |
| Verwarmingssysteem | Gashaard Warmtepomp |
| Ventilatie methode | Mechanische ventilatie Natuurlijke ventilatie |
| Badkamervoorzieningen Badkamer 1 | Douche Inloopdouche Ligbad Wastafel |
| Badkamervoorzieningen Badkamer 2 | Douche Inloopdouche Wastafel Wastafelmeubel |
| Parkeergelegenheid | Inpandige garage |
| Heeft een alarm | Ja |
| Heeft kabel-tv | Ja |
| Heeft een rookkanaal | Ja |
| Tuin aanwezig | Ja |
| Heeft een garage | Ja |
| Heeft domotica | Ja |
| Beschikt over een internetverbinding | Ja |
| Heeft een sauna | Ja |
| Heeft schuur/berging | Ja |
| Heeft een schuifpui | Ja |
| Heeft zonnepanelen | Ja |
| Heeft zonnecollectoren | Ja |
| Heeft ventilatie | Ja |
| Kadastrale aanduiding | Oostburg EB 3072 |
| Perceeloppervlakte | 1.195 m² |
| Omvang | Geheel perceel |
| Eigendomsituatie | Eigen grond |