| Prijs | € 835.000,- k.k. |
| Type object | Appartement, portiekflat, penthouse |
| Woonoppervlakte | 159,1 m² |
| Aanvaarding | In overleg |
Exclusief duplexappartement met frontaal zeezicht – slechts 50 meter van het strand! Zee, zon en ruimte komen hier op unieke wijze samen. Aan de levendige boulevard van Cadzand-Bad, op nog geen minuut lopen van het strand, ligt dit exclusieve duplexappartement van circa 159 m². Een woning waar het ritme van de zee het dagelijks decor vormt, en waar elk detail is gericht op comfort en beleving. Het appartement beslaat twee volwaardige verdiepingen met vier slaapkamers, twee badkamers, een zonnig balkon én een royaal dakterras met frontaal zeezicht. De living met erker biedt een ongeëvenaard panorama over duinen, strand en water — een uitzicht dat nooit verveelt, elk seizoen anders is en in de avond baadt in het warme licht van de ondergaande zon. De sfeer is stijlvol en uitnodigend, met doordachte zichtlijnen, veel daglicht en een open indeling die ruimtelijkheid en rust benadrukt. Hier woon je niet zomaar aan zee — je bént onderdeel van het kustlandschap. Dankzij de dubbele garagebox, het privéparkeerterrein, de centrale ligging en de uitstekende voorzieningen is dit appartement niet alleen een heerlijk toevluchtsoord voor ontspanning, maar ook perfect geschikt voor permanent wonen in luxe en vrijheid. Cadzand-Bad is de meest zuidwestelijke badplaats van Nederland en combineert de charme van een rustige kustplaats met een internationale allure. Je wandelt zo naar ’t Zwin, het beroemde natuurreservaat op de grens met België, of fietst door de open Zeeuws-Vlaamse polders. Op loopafstand liggen toprestaurants (waaronder sterrenzaken), sfeervolle strandpaviljoens en boetiekjes. Overdag geniet je van zon, zee en ruimte; ’s avonds van de gezellige sfeer op de boulevard.
Eerste woonlaag (vijfde verdieping) Via de verzorgde entree met videofoon en lift bereik je de vijfde etage. Achter de voordeur opent zich een ruime hal die meteen het gevoel van lucht en licht verraadt dat door het hele appartement aanwezig is. De L-vormige woonkamer strekt zich uit richting de zee en wordt gekenmerkt door een grote erker die als vanzelf de blik naar buiten trekt. Het uitzicht over duinen, strand en zee is ronduit spectaculair. Aan de voorzijde zorgen de openslaande deuren met glas-in-loodpanelen voor een karaktervol accent, terwijl de zithoek en eethoek harmonieus in elkaar overlopen. De sfeer is warm, het licht is continu in beweging – van ochtendgloed tot avondzon. De halfopen keuken, uitgevoerd in een praktische U-opstelling, sluit naadloos aan op het leefgedeelte en is voorzien van een 4-pits gaskookplaat, combi-oven en vaatwasser. Grenzend aan de hal bevindt zich een gastentoilet, een meterkast en een handige berging met aansluitingen voor wasmachine en droger. Aan de rustige achterzijde bevindt zich de eerste slaapkamer, met aangrenzende badkamer en suite. De badkamer is uitgerust met een ligbad, douche en dubbele wastafel, ideaal voor comfort en privacy op de woonverdieping. Vanuit deze slaapkamer stap je via een schuifpui direct het zuid/zuidoost georiënteerde balkon op – een heerlijke plek om te ontbijten in de zon of te kijken naar de levendigheid van de boulevard.
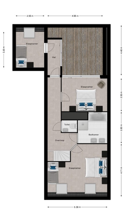
De hal geeft tevens toegang tot de trapopgang naar de 2e verdieping van het appartement. De bovenste verdieping is uitgerust met 3 ruime slaapkamers. Twee slaapkamers zijn voorzien van dakramen die zorgen voor extra natuurlijk licht en wederom ademend uitzicht. De vierde slaapkamer heeft zicht op het dakterras, welke te bereiken is middels een schuifpui. Deze is op het noord/noordoosten georiënteerd. De grote raampartijen zorgen voor fantastisch uitzicht op zee. Tevens heb je hier veel privacy. Op de bovenverdieping vinden nog een tweede badkamer. Deze is voorzien van een ligbad, douche en dubbele wastafel. Een tweede apart toilet complementeert het geheel.
Via de vaste trap bereik je de bovenverdieping. De lichte overloop verbindt hier drie ruime slaapkamers met de tweede badkamer en een apart toilet. Twee slaapkamers beschikken over grote dakramen die uitkijken over de zee en het duinlandschap – ontwaken met uitzicht op het water wordt hier vanzelfsprekend. De derde slaapkamer heeft een schuifpui naar het royale dakterras. Dit terras is gesitueerd op het noord/noordoosten, wat zorgt voor rust, privacy en een fenomenaal uitzicht. Hier kun je ongestoord lezen, borrelen of simpelweg naar de horizon kijken terwijl zeilboten voorbijglijden. De tweede badkamer op deze verdieping is royaal opgezet en voorzien van een ligbad, douche en dubbele wastafel. Een tweede separaat toilet maakt het geheel compleet. De indeling is ideaal voor wie gasten ontvangt of een gezin heeft: de slaapkamers bieden volop ruimte en privacy, terwijl de centrale overloop voor een natuurlijke verbinding zorgt.
In de ondergrondse parkeergarage is er een eigen dubbele garagebox. De garage is ruim (5,30 m x 7,50 m) waardoor deze niet alleen handig is om één of twee auto’s in kwijt te kunnen, maar ook als berging voor bijvoorbeeld het stallen van fietsen of het opbergen van (strand)spullen. Achter het gebouw (bovengronds) zijn er ook parkeerplaatsen die gebruikt kunnen worden door de bewoners
Naast het balkon en het dakterras beschikt dit appartement over uitstekende parkeervoorzieningen. In de ondergrondse parkeergarage hoort een dubbele garagebox van ca. 5,30 x 7,50 m, ruim genoeg voor twee auto’s, fietsen en strandspullen. Daarnaast is er een afgesloten privéparkeerterrein achter het gebouw, uitsluitend voor bewoners van Residence Cadzand.
- Slechts 50 meter van het strand - Frontaal zeezicht vanuit woonkamer en dakterras - Woonoppervlakte ca. 159 m² verdeeld over twee verdiepingen - Vier slaapkamers, twee badkamers, twee toiletten - Balkon (Z/ZO) en dakterras (N/NO) - Dubbele garagebox en privéparkeerterrein - Verwarming en warm water via CV-ketel (2012) - Houten kozijnen met dubbele beglazing - Actieve VvE, bijdrage € 485,- per maand Wonen of recreëren aan zee op toplocatie! Dit exclusieve duplexappartement (ca. 159 m²) met balkon, dakterras en frontaal zeezicht ligt slechts 50 meter van het strand van Cadzand-Bad. Vier slaapkamers, twee badkamers, dubbele garagebox en adembenemende vergezichten over duinen en zee – hier ervaar je dagelijks het ultieme kustgevoel. Vraagprijs € 835.000,- kosten koper/ inclusief inventaris
| Referentienummer | 00732 |
| Vraagprijs | € 835.000,- k.k. |
| Servicekosten | € 485,- |
| Elektra | € 50,- |
| Gas | € 100,- |
| Water | € 25,- |
| Inrichting | Ja |
| Inrichting | Gemeubileerd |
| Aanvaarding | In overleg |
| Aangeboden sinds | Donderdag 16 oktober 2025 |
| Laatste wijziging | Donderdag 27 november 2025 |
| Type object | Appartement, portiekflat, penthouse |
| Woonlaag | 5e woonlaag |
| Soort bouw | Bestaande bouw |
| Bouwperiode | 1996 |
| Dakbedekking | Bitumen |
| Type dak | Platdak |
| Keurmerken | Energie prestatie advies |
| Isolatievormen | Dubbel glas Spouwmuren Volledig geïsoleerd |
| Woonoppervlakte | 159,1 m² |
| Woonkameroppervlakte | 44,86 m² |
| Keukenoppervlakte | 5,94 m² |
| Inhoud | 528 m³ |
| Oppervlakte externe bergruimte | 40 m² |
| Oppervlakte gebouwgebonden buitenruimte | 20,9 m² |
| Balkonoppervlakte | 4,98 m² |
| Aantal bouwlagen | 2 |
| Aantal kamers | 5 (waarvan 4 slaapkamers) |
| Aantal badkamers | 2 (en 2 aparte toiletten) |
| Ligging | Aan rustige weg Aan vaarwater Aan water Aan zee Dichtbij openbaar vervoer In centrum Open ligging Vrij uitzicht |
| Energielabel | A |
| CV ketel | Intergas |
| Warmtebron | Gas |
| Bouwjaar | 2012 |
| Combiketel | Ja |
| Eigendom | Eigendom |
| Aantal parkeerplaatsen | 2 |
| Aantal overdekte parkeerplaatsen | 2 |
| Warm water | CV-ketel |
| Verwarmingssysteem | Centrale verwarming |
| Ventilatie methode | Natuurlijke ventilatie |
| Badkamervoorzieningen Badkamer 1 | Douche Dubbele wastafel Ligbad |
| Badkamervoorzieningen Badkamer 2 | Douche Dubbele wastafel Ligbad |
| Parkeergelegenheid | Garagebox |
| Heeft een balkon | Ja |
| Heeft kabel-tv | Ja |
| Heeft een frans balkon | Ja |
| Heeft een garage | Ja |
| Beschikt over een internetverbinding | Ja |
| Heeft een dakraam | Ja |
| Heeft een schuifpui | Ja |
| Ingeschreven bij de KvK | Ja |
| Jaarlijkse vergadering | Ja |
| Periodieke bijdrage | Ja |
| Reservefonds | Ja |
| Meer jaren onderhoudsplan | Ja |
| Onderhoudsverwachting | Ja |
| Opstal verzekering | Ja |
| Kadastrale aanduiding | Oostburg EC 1533 |
| Omvang | Appartementsrecht of complex |
| Eigendomsituatie | Eigen grond |