Beschrijving
Deze charmante vrijstaande recreatiewoning is gelegen op Dormio Strand Resort Nieuwvliet-Bad. De woning heeft een rustige ligging en beschikt over 3 slaapkamers en 2 badkamers. Het ruime perceel van 380 m2 en het terras hebben een noordoostelijke oriëntatie. De woning is volledig ingericht voor een verblijf met kinderen. Zo zijn er speciale veiligheidsvoorzieningen aangebracht: zo is er een traphekje, zijn alle stopcontacten zijn ‘kidsproof’ gemaakt en is er een ledikant. Mogen we jou binnenkort ontvangen voor een bezichtiging?
Op loopafstand van het park zijn het weidse strand en natuurgebied de Verdronken Zwarte Polder gesitueerd. Lekker om in te pootjebaden en te zwemmen, en ideaal voor kleine kinderen vanwege het lang ondiep aflopende water. Hier kan je kilometers lopen langs de water- en kustlijn. De regio leent zich ook perfect voor lange fietstochten en culinaire verrassingen.
Ook op het park is er genoeg te doen. Het vakantiepark heeft voldoende recreatiemogelijkheden. Kinderen kunnen zich vermaken in de indoorspeelplaats of in de verschillende speeltuinen. Tevens is er een overdekt zwembad met peuterbad. De sportieve bezoekers hebben vismogelijkheden, of kunnen hun vaardigheid testen op de jeu-de-boulesbaan. Kortom, een ideale locatie voor jong en oud.
Indeling
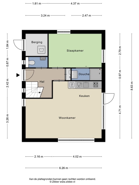
Via de entree kom je in een ruime hal die toegang geeft tot de meterkast, gastentoilet, trapopgang, woonkamer en slaapkamer met badkamer en suite. De badkamer is uitgerust met een inloopdouche en wastafel. Vanuit de hal komen we in de royale woonkamer. De grote raampartijen zorgen voor veel natuurlijk lichtinval. De woonkamer met tuindeuren naar het terras staat in open verbinding met de keuken. De moderne keuken is voorzien van alle nodige en geïntegreerde inbouwapparatuur.
Eerste verdieping
Middels de trapopgang bereik je de overloop die toegang geeft tot 2 ruime slaapkamers en een moderne badkamer. Het schuine dak geeft de kamers een knusse sfeer. De nette badkamer is voorzien van een ligbad, wastafel en toilet.
Tuin
Rondom de woning ligt een met gras ingezaaide tuin met terras aanliggend aan de tuindeuren van de woonkamer. De tuin biedt allerlei mogelijkheden zoals barbecueën en voldoende speelruimte. Er is een inpandige berging aanwezig met de cv-ketel en witgoedaansluitingen.
Bijzonderheden
- Nabij het Noordzeestrand
- Volledig geïsoleerd en voorzien van dubbele beglazing (HR++)
- Verwarming en warm water middels HR-combi ketel
- Voorzien van kunststof kozijnen en HR++ beglazing
- Inpandige berging
- Terras op het noordoosten georiënteerd
- Parkeergelegenheid op eigen terrein
Vraagprijs € 297.000, - kosten koper/ incl. inventaris
Plattegronden
363606_2D_Begane_grond_Baanstpoldersedijk_4_214_Nieuwvliet_01.jpg
363606_2D_Eerste_verdieping_Baanstpoldersedijk_4_214_Nieuwvliet_02.jpg
363606_3D_Begane_grond_Baanstpoldersedijk_4_214_Nieuwvliet_01.png
363606_3D_Eerste_verdieping_Baanstpoldersedijk_4_214_Nieuwvliet_02.png