Beschrijving
Luxe Beach House op loopafstand van zee
Droom jij van een plek waar je het hele jaar door het ultieme vakantiegevoel ervaart? Dit luxe Beach House op Beach Resort Nieuwvliet-Bad ligt op een toplocatie: direct naast natuurgebied De Verdronken Zwarte Polder en op slechts enkele minuten lopen van het strand.
Het huis springt meteen in het oog door de houten gevelbekleding, het moderne felsdak en de indrukwekkende glaspartij tot in de nok. De verhoogde veranda met robuuste spanten, vaste loungebank en terrasheater is dé plek om te genieten van zon, uitzicht en lange zomeravonden.
Rondom ligt je eigen “zandtuin” met picknicktafel, helmgras en duindoorn – veel privacy en een uniek kustgevoel! Het resort zelf biedt daarnaast uitgebreide faciliteiten zoals een zwemparadijs, restaurant, supermarkt en diverse speeltuinen.
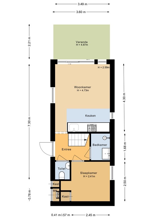
Indeling
Via de ruime hal met trapopgang heb je toegang tot de woonkamer, slaapkamer, badkamer en het separate toilet. Het toilet is modern afgewerkt en voorzien van een fonteintje.
De woonkamer ademt licht en ruimte dankzij de hoge kap en de glazen pui tot in de nok. Openslaande deuren verbinden de leefruimte met de veranda op het zuiden. Hier zit je beschut onder de kapconstructie, met een vaste loungebank en terrasheater.
De open keuken is praktisch ingericht en voorzien van alle inbouwapparatuur: een 4-pits gaskookplaat, afzuigkap, vaatwasser, koelkast met vriesvak en combimagnetron.
Op de begane grond bevindt zich tevens een slaapkamer met tweepersoonsbed en televisie. De houtlook accentwand geeft extra sfeer. De moderne badkamer beschikt over een luxe douchecabine, strak wastafelmeubel en een design handdoekradiator.
Eerste verdieping
Op de verdieping vind je een knusse slaapzolder met stahoogte en twee eenpersoonsbedden. Het ronde raam in de kopgevel zorgt voor extra licht en een charmant detail. Ook is er praktische bergruimte aanwezig.
Tuin
De woning beschikt over een eigen “zandtuin” met picknicktafel, ideaal voor gezellige borrels of lange zomeravonden. Het perceel is omringd door duinbegroeiing, wat zorgt voor veel privacy. Dankzij de ligging op het zuiden geniet je hier de hele dag van de zon, terwijl de veranda beschutting biedt.
Bijzonderheden
• Slechts 350 meter van het Noordzeestrand
• Op 100 meter van het centrumgebouw met zwembad, restaurant en supermarkt
• Twee comfortabele slaapkamers en een moderne badkamer
• Overdekte, verhoogde veranda met vaste loungebank en terrasheater
• Eigen “zandtuin” met picknicktafel, omringd door duinbegroeiing voor veel privacy
• Grote glaspartij tot in de nok en sfeervolle houten spanten in het zicht
• Onderhoudsvriendelijk en duurzaam: kunststof kozijnen met HR++-glas
• Verwarming via energiezuinige HR-combiketel
• Handige zij-opgang via houten hellingbaan
• Speeltuin in het park op korte loopafstand
• Parkeergelegenheid nabij
• Inclusief complete inventaris
Vraagprijs € 329.000,– k.k. (inclusief inventaris)
Restant btw-herzieningstermijn wordt verlegd.
Een unieke combinatie van luxe, comfort en een toplocatie aan de Zeeuwse kust – dit Beach House moet je ervaren!
Plattegronden
FotoXperience-Woningfotografie-Begane grond - 2D.jpg
FotoXperience-Woningfotografie-Begane grond - 3D.png
FotoXperience-Woningfotografie-Eerste verdieping - 2D.jpg
FotoXperience-Woningfotografie-Eerste verdieping - 3D.png