| Prijs | € 475.000,- k.k. |
| Type object | Woonhuis, eengezinswoning, vrijstaande woning |
| Recreatie object | |
| Perceeloppervlakte | 396 m² |
| Woonoppervlakte | 103,7 m² |
| Aanvaarding | In overleg |
Luxe vrijstaande 8-persoons recreatiewoning met sauna en overkapping Stijlvol, comfortabel en ruim: deze vrijstaande recreatiewoning op Beach Resort Nieuwvliet-Bad biedt plaats aan 8 personen en combineert luxe aan de Zeeuwse kust met een aantrekkelijk verhuurrendement. Met vier slaapkamers, drie badkamers, een sauna en een royaal terras met overkapping is dit de ideale woning voor wie zorgeloos wil investeren in recreatie of zelf wil genieten van een tweede thuis vlak bij het strand. De woning wordt verhuurd via Roompot, waardoor zowel het beheer als de verhuur volledig professioneel geregeld zijn. Zo levert de woning niet alleen plezier, maar ook rendement op. De woning ligt op korte afstand van zowel het Noordzeestrand als het centrumgebouw van Beach Resort Nieuwvliet-Bad. Op het park zijn tal van faciliteiten aanwezig, waaronder een overdekt zwembad, fietsverhuur, een sfeervol restaurant en diverse speeltuinen. Voor kinderen is er bovendien een uitgebreid animatieprogramma. De omgeving leent zich uitstekend voor lange wandelingen en fietstochten door de duinen en polders, of voor uitstapjes naar Cadzand, Sluis en natuurgebied Het Zwin.
Bij binnenkomst stap je in een lichte hal die toegang geeft tot de royale woonkamer. Dankzij de grote raampartijen valt er veel daglicht binnen en is er een prettig uitzicht op de tuin. De woonkamer is ruim genoeg voor een gezellige zithoek én een grote eettafel, ideaal om samen te komen met familie of vrienden. De moderne open keuken, compleet met inbouwapparatuur en veel werkruimte, sluit hier direct op aan. Via de openslaande deuren bereik je het ruime terras met een overkapping van circa 22 m² – een fijne plek die als verlengstuk van de woonkamer het hele jaar door gebruikt kan worden. Op de begane grond bevindt zich daarnaast een slaapkamer met eigen badkamer, waardoor de woning ook geschikt is voor gelijkvloers gebruik. Verder zijn er een praktische bijkeuken, een separaat toilet en een externe berging aanwezig.
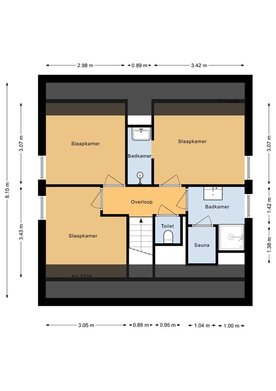
De eerste verdieping telt drie ruime slaapkamers, allemaal geschikt voor een tweepersoonsbed of meerdere eenpersoonsbedden. Er zijn twee badkamers: één met inloopdouche en wastafel en één met ligbad, wastafel en toilet. Voor extra gemak is er een tweede separaat toilet op de overloop. Als extra luxe beschikt deze verdieping bovendien over een eigen sauna, waar je heerlijk kunt ontspannen na een dag aan zee.
De woning heeft een onderhoudsvriendelijke tuin met een zonnig terras op het zuiden/zuidwesten. Hier is plek voor een loungeset én een eettafel, zodat je volop kunt genieten van het buitenleven. De rustige ligging aan een laantje met enkel bestemmingsverkeer zorgt voor veel privacy. Daarnaast is er parkeergelegenheid op eigen terrein voor meerdere voertuigen.
- Luxe vrijstaande recreatiewoning met vier slaapkamers en drie badkamers - Geschikt voor 8 personen, ideaal voor gezinnen of groepen - Sauna voor ultieme ontspanning - Slaap- en badkamer op de begane grond, geschikt voor gelijkvloers gebruik - Royale woonkamer met open keuken en veel lichtinval - Groot terras met overkapping, gelegen op het zuiden/zuidwesten - Onderhoudsvriendelijke tuin met veel privacy - Rustige ligging aan een autoluw laantje - Eigen oprit met parkeergelegenheid voor meerdere auto’s - Professionele verhuur via Roompot met aantrekkelijk rendement Vraagprijs € 475.000, - k.k. inclusief inventaris
| Referentienummer | 00727 |
| Vraagprijs | € 475.000,- k.k. |
| Servicekosten | € 52,06 |
| Gas | € 133,90 |
| Water | € 17,55 |
| Inrichting | Ja |
| Inrichting | Gemeubileerd |
| Aanvaarding | In overleg |
| Aangeboden sinds | Vrijdag 3 oktober 2025 |
| Laatste wijziging | Woensdag 26 november 2025 |
| Type object | Woonhuis, eengezinswoning, vrijstaande woning |
| Soort bouw | Bestaande bouw |
| Bouwperiode | 2018 |
| Dakbedekking | Dakpannen Steen |
| Type dak | Zadeldak |
| Keurmerken | Energie prestatie advies |
| Isolatievormen | HR-glas Spouwmuren Volledig geïsoleerd |
| Perceeloppervlakte | 396 m² |
| Woonoppervlakte | 103,7 m² |
| Woonkameroppervlakte | 29,22 m² |
| Keukenoppervlakte | 2,89 m² |
| Inhoud | 400 m³ |
| Oppervlakte overige inpandige ruimten | 10 m² |
| Oppervlakte externe bergruimte | 3 m² |
| Oppervlakte gebouwgebonden buitenruimte | 22 m² |
| Aantal bouwlagen | 2 |
| Aantal kamers | 5 (waarvan 4 slaapkamers) |
| Aantal badkamers | 3 (en 1 apart toilet) |
| Ligging | Aan rustige weg Open ligging Platteland |
| Energielabel | A |
| CV ketel | Intergas HRE |
| Warmtebron | Gas |
| Bouwjaar | 2018 |
| Combiketel | Ja |
| Eigendom | Eigendom |
| Aantal parkeerplaatsen | 2 |
| Warm water | CV-ketel |
| Verwarmingssysteem | Centrale verwarming |
| Ventilatie methode | Mechanische ventilatie Natuurlijke ventilatie |
| Badkamervoorzieningen Badkamer 1 | Inloopdouche Wastafel Wastafelmeubel |
| Badkamervoorzieningen Badkamer 2 | Inloopdouche Wastafel Wastafelmeubel |
| Badkamervoorzieningen Badkamer 3 | Douche Wastafel Wastafelmeubel |
| Heeft kabel-tv | Ja |
| Beschikt over een internetverbinding | Ja |
| Heeft een sauna | Ja |
| Heeft schuur/berging | Ja |
| Heeft een schuifpui | Ja |
| Heeft ventilatie | Ja |
| Kadastrale aanduiding | Oostburg V 1756 |
| Perceeloppervlakte | 396 m² |
| Omvang | Geheel perceel |
| Eigendomsituatie | Eigen grond |