Beschrijving

Vrijstaande lodge op Beach Resort Nieuwvliet-Bad – comfort, natuur en rust vlak bij zee

Welkom in deze moderne en volledig ingerichte vrijstaande Kooslodge, gelegen op het geliefde Beach Resort Nieuwvliet-Bad.
Hier combineer je het gevoel van vrijheid aan de kust met het comfort van een luxe vakantieverblijf. Op slechts enkele minuten lopen van het Noordzeestrand geniet je van frisse zeelucht, uitgestrekte duinen en een ontspannen sfeer — de perfecte plek om even helemaal op te laden.

De lodge ligt op een ruim perceel van 327 m² met een gunstige zuidwestelijke ligging, zodat je de hele dag door van de zon kunt genieten. Dankzij het duurzame ontwerp (energielabel A+++), de zonnepanelen, luchtwarmtepomp en het lage energieverbruik, is dit niet alleen een heerlijke plek om te wonen of recreëren, maar ook een verantwoorde investering in de toekomst.

Of je nu zoekt naar een tweede thuis aan zee, een interessante beleggingsmogelijkheid of simpelweg een rustige plek om met familie te ontspannen – deze lodge biedt het allemaal.

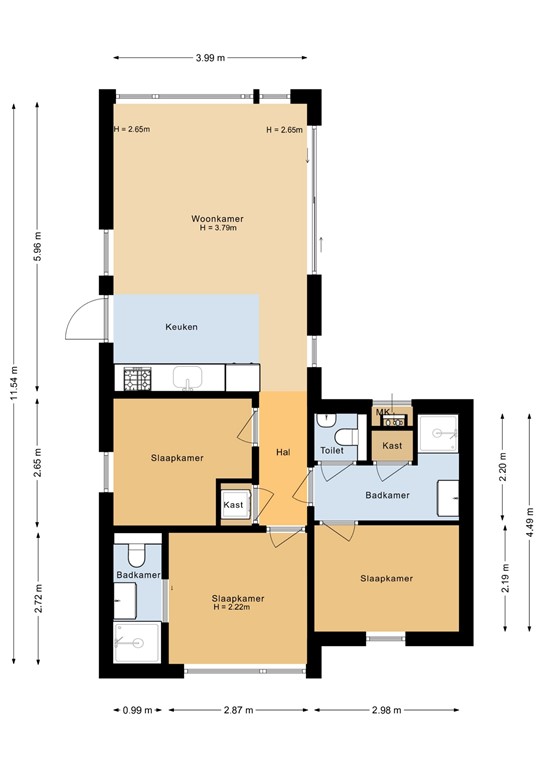
Indeling

Bij binnenkomst in de hal valt direct de lichte en open sfeer op die door de hele woning aanwezig is.
De woonkamer is ruim en uitnodigend, met een hoge nok van bijna 3,8 meter, grote raampartijen en een schuifpui die zorgt voor een natuurlijke overgang naar buiten. De zithoek met uitzicht op de tuin vormt het hart van het huis – een heerlijke plek om te ontspannen na een dag aan het strand.

De open keuken sluit hier naadloos op aan en is voorzien van moderne inbouwapparatuur, waaronder een inductiekookplaat, afzuigkap, combimagnetron, koelkast met vriesvak en vaatwasser. De opstelling is praktisch en stijlvol, met voldoende werkruimte en kastruimte.

Via de hal bereik je drie comfortabele slaapkamers:
- De master bedroom is voorzien van een tweepersoonsbed, inbouwkasten en een eigen badkamer en-suite met inloopdouche, wastafel en toilet.
- De tweede slaapkamer is ruim genoeg voor een tweepersoonsbed of twee losse bedden en heeft toegang tot de tweede badkamer, uitgerust met douche en wastafel.
- De derde slaapkamer is ingericht als kinderkamer, met op maat gemaakte stapelbedden in een speelse huisvorm en een kleine speel- of tekenhoek – een echte favoriet voor de jongste gasten.

Daarnaast vind je in de hal een separaat toilet en een technische ruimte met aansluitingen voor wasmachine en droger.

De woning is volledig geïsoleerd, voorzien van kunststof kozijnen met HR++ glas en uitgerust met vloerverwarming voor extra comfort.

Tuin

De verzorgde tuin rondom de lodge ligt gunstig op het zuidwesten, waardoor je van ’s ochtends vroeg tot in de avond kunt genieten van de zon.
Het ruime terras biedt plaats aan zowel een eettafel als loungemeubilair, ideaal voor lange zomeravonden met familie en vrienden.
De ligging aan een speeltuintje maakt dit huis bovendien perfect voor gezinnen met jonge kinderen.
Parkeren kan op een eigen parkeerplaats.

Bijzonderheden

- Op zeer korte afstand van het Noordzeestrand
- Op zeer korte afstand van parkvoorzieningen met o.a. een zwembad, winkel en restaurant
- 3 slaapkamers en 2 badkamers
- Energielabel A+++, kunststof kozijnen met HR++ glas
- Zonnepanelen, luchtwarmtepomp en elektrische boiler
- Zuidwestelijke ligging met terras op de zonzijde
- Parkeren op eigen parkeerplaats
- Ligging direct aan een speeltuin – ideaal voor gezinnen

Vraagprijs € 325.000, - kosten koper/ incl. inventaris
Restant btw-herzieningstermijn wordt verlegd.

Deze lodge ademt kwaliteit, rust en gemak – precies wat je zoekt in een tweede woning aan zee. Met de zee en duinen op loopafstand, moderne voorzieningen binnen handbereik en een duurzaam ontwerp dat klaar is voor de toekomst, is dit een plek waar je niet alleen verblijft, maar echt thuiskomt aan de kust.

Kenmerken