Verkocht: Nieuwesluisweg 1A1039, 4511 RG Breskens
€ 215.000,- k.k.
| Type object | Woonhuis, bungalow, vrijstaande woning |
|---|---|
| Perceeloppervlakte | 271 m² |
| Aanvaarding | In overleg |
| Recreatie object | |
| Woonoppervlakte | 49,9 m² |
| Status | Verkocht |
Beschrijving
Deze moderne, vrijstaande lodge is prachtig gelegen op een rustige plek binnen Kustpark Zeebad, op steenworp afstand van het charmante vissersdorp Breskens. De woning beschikt over een ruime berging en is omgeven door een verzorgde tuin met een royaal terras op het noordwesten – ideaal om in alle rust te genieten van de middag- en avondzon.
Binnenin biedt de lodge alle comfort met twee ruime slaapkamers en twee nette badkamers, waardoor het verblijf aangenaam is voor zowel stellen als gezinnen. Dankzij de slimme indeling en moderne afwerking voelt het geheel licht en ruim aan.
De locatie is perfect: op slechts een korte wandeling van het brede Noordzeestrand én het sfeervolle centrum van Breskens, waar je terechtkunt voor een gezellige lunch, verse vis, of een avondje uit eten bij één van de uitstekende restaurants. Ook de lokale winkels en terrasjes dragen bij aan het vakantiegevoel.
Een ideale plek voor wie op zoek is naar een comfortabele en zorgeloze recreatiewoning dicht bij zee!
De omgeving nodigt uit tot ontdekken. Kilometerslange fiets- en wandelroutes voeren je door het afwisselende landschap van duinen, dijken en uitgestrekte polders. Of je nu houdt van een ontspannen tocht langs de kust of een actieve verkenningstocht door het binnenland, er is voor ieder wat wils.
Een absolute aanrader is een bezoek aan het bijzondere natuurgebied Waterdunen. Dit unieke getijdengebied is nog volop in ontwikkeling, maar biedt nu al een indrukwekkende ervaring voor natuurliefhebbers. Je kunt hier heerlijk wandelen over slingerende paden, genieten van weidse vergezichten en talloze vogelsoorten van dichtbij bewonderen.
De bijzondere ligging van Waterdunen zorgt voor een fascinerend samenspel tussen zoet en zout water, land en zee, eb en vloed. Deze dynamiek creëert een uniek leefgebied voor planten en dieren, en een inspirerende plek voor bezoekers. Kies een van de drie uitgezette wandelroutes en laat je verrassen door de rust, de ruimte en de rijkdom aan natuur.
Binnenin biedt de lodge alle comfort met twee ruime slaapkamers en twee nette badkamers, waardoor het verblijf aangenaam is voor zowel stellen als gezinnen. Dankzij de slimme indeling en moderne afwerking voelt het geheel licht en ruim aan.
De locatie is perfect: op slechts een korte wandeling van het brede Noordzeestrand én het sfeervolle centrum van Breskens, waar je terechtkunt voor een gezellige lunch, verse vis, of een avondje uit eten bij één van de uitstekende restaurants. Ook de lokale winkels en terrasjes dragen bij aan het vakantiegevoel.
Een ideale plek voor wie op zoek is naar een comfortabele en zorgeloze recreatiewoning dicht bij zee!
De omgeving nodigt uit tot ontdekken. Kilometerslange fiets- en wandelroutes voeren je door het afwisselende landschap van duinen, dijken en uitgestrekte polders. Of je nu houdt van een ontspannen tocht langs de kust of een actieve verkenningstocht door het binnenland, er is voor ieder wat wils.
Een absolute aanrader is een bezoek aan het bijzondere natuurgebied Waterdunen. Dit unieke getijdengebied is nog volop in ontwikkeling, maar biedt nu al een indrukwekkende ervaring voor natuurliefhebbers. Je kunt hier heerlijk wandelen over slingerende paden, genieten van weidse vergezichten en talloze vogelsoorten van dichtbij bewonderen.
De bijzondere ligging van Waterdunen zorgt voor een fascinerend samenspel tussen zoet en zout water, land en zee, eb en vloed. Deze dynamiek creëert een uniek leefgebied voor planten en dieren, en een inspirerende plek voor bezoekers. Kies een van de drie uitgezette wandelroutes en laat je verrassen door de rust, de ruimte en de rijkdom aan natuur.
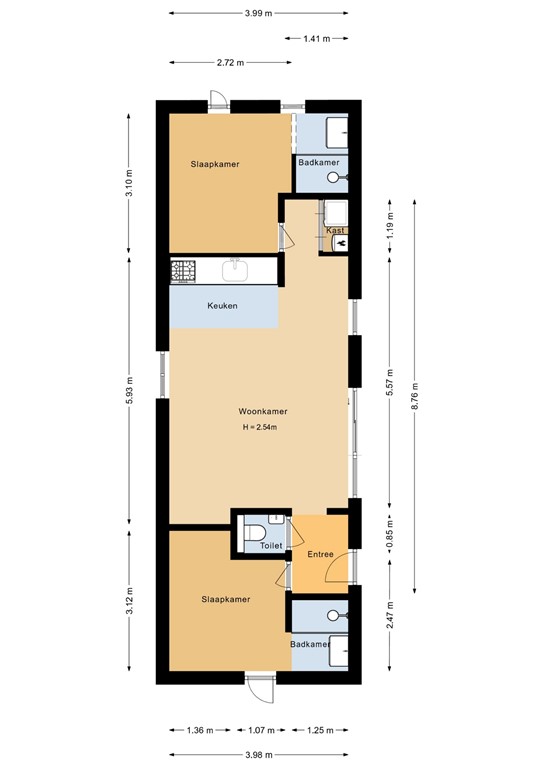
Indeling
Via de entree kom je in een verzorgde hal die toegang geeft tot de verschillende vertrekken van de lodge. Hier bevinden zich onder andere een modern afgewerkt gastentoilet, een comfortabele slaapkamer met een luxe en suite badkamer, en de royale living.
De slaapkamer op de begane grond biedt volop comfort en privacy. De aangrenzende badkamer is stijlvol ingericht met een ruime inloopdouche, een wastafel met fraai meubel en een designradiator voor warme handdoeken – alles wat je nodig hebt voor een ontspannen start van de dag.
De lichte, open woonkamer vormt het hart van de woning en wordt gekenmerkt door een grote schuifpui die zorgt voor een naadloze overgang naar het zonnige terras en de tuin. Hierdoor haal je buiten moeiteloos naar binnen. De woonkamer loopt vloeiend over in de eigentijdse keuken, die is voorzien van alle moderne gemakken. Denk aan hoogwaardige, ingebouwde apparatuur zoals een afzuigkap, vaatwasser, vierpits gaskookplaat, combimagnetron en een koel-vriescombinatie.
Aansluitend aan de living bevindt zich de tweede slaapkamer, eveneens met een eigen badkamer en suite. Ook deze badkamer is compleet en modern uitgevoerd met een inloopdouche, een stijlvol wastafelmeubel en een design handdoekradiator – ideaal voor gasten of als extra luxe voor eigen gebruik.
De slaapkamer op de begane grond biedt volop comfort en privacy. De aangrenzende badkamer is stijlvol ingericht met een ruime inloopdouche, een wastafel met fraai meubel en een designradiator voor warme handdoeken – alles wat je nodig hebt voor een ontspannen start van de dag.
De lichte, open woonkamer vormt het hart van de woning en wordt gekenmerkt door een grote schuifpui die zorgt voor een naadloze overgang naar het zonnige terras en de tuin. Hierdoor haal je buiten moeiteloos naar binnen. De woonkamer loopt vloeiend over in de eigentijdse keuken, die is voorzien van alle moderne gemakken. Denk aan hoogwaardige, ingebouwde apparatuur zoals een afzuigkap, vaatwasser, vierpits gaskookplaat, combimagnetron en een koel-vriescombinatie.
Aansluitend aan de living bevindt zich de tweede slaapkamer, eveneens met een eigen badkamer en suite. Ook deze badkamer is compleet en modern uitgevoerd met een inloopdouche, een stijlvol wastafelmeubel en een design handdoekradiator – ideaal voor gasten of als extra luxe voor eigen gebruik.
Tuin
De fraai aangelegde tuin rondom de lodge biedt volop rust en privacy – een ideale plek om helemaal tot jezelf te komen. Het ruime zonneterras vormt het hart van de buitenruimte: perfect om te ontspannen met een goed boek, te genieten van een kop koffie in de ochtendzon, of om gezellig buiten te eten op lange zomeravonden. Een sfeervolle barbecue maakt het plaatje compleet en nodigt uit tot gezellige momenten met familie en vrienden.
Voor het praktische gemak is er een vrijstaande berging aanwezig, ideaal voor het opbergen van tuinkussens, fietsen, strandspullen of andere benodigdheden. Zo blijft alles netjes georganiseerd en heb je altijd alles bij de hand voor een zorgeloos verblijf aan de kust.
Voor het praktische gemak is er een vrijstaande berging aanwezig, ideaal voor het opbergen van tuinkussens, fietsen, strandspullen of andere benodigdheden. Zo blijft alles netjes georganiseerd en heb je altijd alles bij de hand voor een zorgeloos verblijf aan de kust.
Bijzonderheden
• Gelegen op korte afstand van het Noordzeestrand (ca. 400 meter)
• Nabij het centrale parkgebouw met onder andere een overdekt zwembad (ca. 700 meter)
• Twee comfortabele slaapkamers, beide met een eigen badkamer
• Extra separaat gastentoilet
• Verwarming via een energiezuinige HR-combiketel
• Onderhoudsvriendelijke kunststof kozijnen met HR++ dubbele beglazing
• Terras met noordwestelijke oriëntatie – ideaal voor middag- en avondzon
• Recent professioneel buitenschilderwerk uitgevoerd
• Zitmeubilair vernieuwd in 2023
• Eigen parkeerplaats op het centrale parkeerterrein
Vraagprijs € 215.000, - kosten koper/ incl. inventaris
• Nabij het centrale parkgebouw met onder andere een overdekt zwembad (ca. 700 meter)
• Twee comfortabele slaapkamers, beide met een eigen badkamer
• Extra separaat gastentoilet
• Verwarming via een energiezuinige HR-combiketel
• Onderhoudsvriendelijke kunststof kozijnen met HR++ dubbele beglazing
• Terras met noordwestelijke oriëntatie – ideaal voor middag- en avondzon
• Recent professioneel buitenschilderwerk uitgevoerd
• Zitmeubilair vernieuwd in 2023
• Eigen parkeerplaats op het centrale parkeerterrein
Vraagprijs € 215.000, - kosten koper/ incl. inventaris
Kenmerken
| Overdracht | |
|---|---|
| Referentienummer | 00642 |
| Vraagprijs | € 215.000,- k.k. |
| Elektra | € 58,- |
| Gas | € 77,- |
| Water | € 13,- |
| Inrichting | Ja |
| Inrichting | Gemeubileerd |
| Status | Verkocht |
| Aanvaarding | In overleg |
| Aangeboden sinds | Donderdag 22 mei 2025 |
| Laatste wijziging | Vrijdag 11 juli 2025 |
| Bouw | |
|---|---|
| Type object | Woonhuis, bungalow, vrijstaande woning |
| Soort bouw | Bestaande bouw |
| Bouwperiode | 2015 |
| Dakbedekking | Kunststof |
| Type dak | Platdak |
| Isolatievormen | HR-glas Volledig geïsoleerd |
| Oppervlaktes en inhoud | |
|---|---|
| Perceeloppervlakte | 271 m² |
| Woonoppervlakte | 49,9 m² |
| Woonkameroppervlakte | 22,09 m² |
| Inhoud | 181 m³ |
| Oppervlakte externe bergruimte | 5,74 m² |
| Indeling | |
|---|---|
| Aantal bouwlagen | 1 |
| Aantal kamers | 3 (waarvan 2 slaapkamers) |
| Aantal toiletten | 1 |
| Locatie | |
|---|---|
| Ligging | Aan rustige weg Aan water Dichtbij openbaar vervoer Open ligging Platteland |
| Tuin | |
|---|---|
| Type | Tuin rondom |
| Oriëntering | Noord west |
| Staat | Normaal |
| CV ketel | |
|---|---|
| CV ketel | Intergas HRE |
| Warmtebron | Gas |
| Bouwjaar | 2015 |
| Combiketel | Ja |
| Eigendom | Eigendom |
| Uitrusting | |
|---|---|
| Warm water | CV-ketel |
| Verwarmingssysteem | Centrale verwarming |
| Ventilatie methode | Natuurlijke ventilatie |
| Heeft kabel-tv | Ja |
| Tuin aanwezig | Ja |
| Beschikt over een internetverbinding | Ja |
| Heeft schuur/berging | Ja |
| Heeft een schuifpui | Ja |
| Kadastrale gegevens | |
|---|---|
| Kadastrale aanduiding | Oostburg EL 1459 |
| Perceeloppervlakte | 233 m² |
| Omvang | Geheel perceel |
| Eigendomsituatie | Eigen grond |