Onder bod: Zeedijk 24-952, 4504 PN Nieuwvliet
€ 325.000,- k.k.
| Type object | Woonhuis, bungalow, vrijstaande woning |
|---|---|
| Perceeloppervlakte | 610 m² |
| Aanvaarding | In overleg |
| Recreatie object | |
| Woonoppervlakte | 60,1 m² |
| Status | Onder bod |
Beschrijving
Op Beach Resort Nieuwvliet-Bad vinden we deze moderne, vrijstaande en energiezuinige recreatiewoning. Zeedijk 24-952 beschikt over zonnepanelen, een luchtwarmtepomp en een warmwaterboiler. Dit goed onderhouden object is als nieuw en is gesitueerd op een zeer royaal perceel van 610 m2. Het ruime terras, gelegen op het noordoosten, biedt de mogelijkheid voor aangenaam vertoeven in de buitenlucht. In de lodge vinden we maar liefst 3 slaapkamers en 2 badkamers. Maak snel kennis met deze bijzondere en duurzame recreatiewoning!
Beach Resort Nieuwvliet-Bad is een prachtig vakantiedomein direct gelegen aan het strand. Een houten brug (fly over) verbindt het park met het brede zandstrand. Het park beschikt over talloze, luxe centrale voorzieningen: een subtropisch zwemparadijs met glijbanen, een restaurant, met groot buitenterras, een supermarkt, een indoor speeltuin, minigolf en fietsverhuur. Direct buiten het park zijn er kilometerslange wandel- en fietspaden langs het strand en in de polder. Je kan daarnaast volop genieten van de Zeeuwse natuur in natuurgebied De Verdronken Zwarte Polder of het bij Cadzand gelegen natuurgebied Het Zwin op de grens met België. De bekende West-Vlaamse steden Knokke-Heist, Oostende en Brugge bevinden zich op korte afstand
Beach Resort Nieuwvliet-Bad is een prachtig vakantiedomein direct gelegen aan het strand. Een houten brug (fly over) verbindt het park met het brede zandstrand. Het park beschikt over talloze, luxe centrale voorzieningen: een subtropisch zwemparadijs met glijbanen, een restaurant, met groot buitenterras, een supermarkt, een indoor speeltuin, minigolf en fietsverhuur. Direct buiten het park zijn er kilometerslange wandel- en fietspaden langs het strand en in de polder. Je kan daarnaast volop genieten van de Zeeuwse natuur in natuurgebied De Verdronken Zwarte Polder of het bij Cadzand gelegen natuurgebied Het Zwin op de grens met België. De bekende West-Vlaamse steden Knokke-Heist, Oostende en Brugge bevinden zich op korte afstand
Indeling
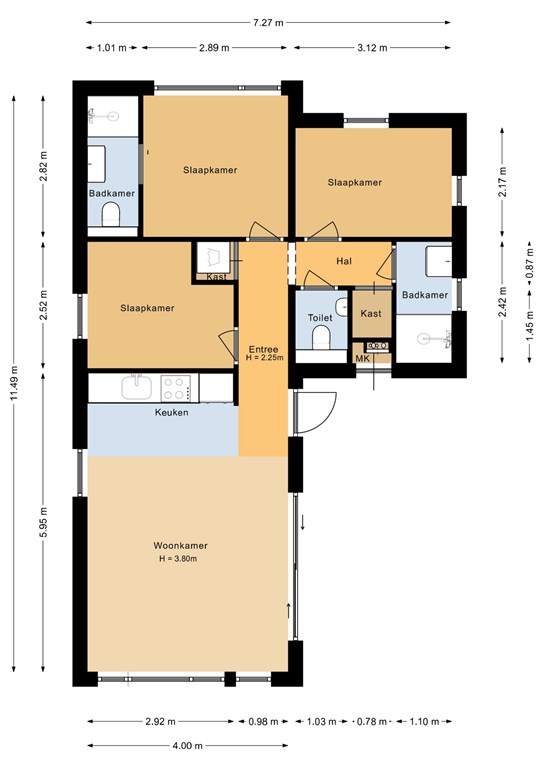
Via de entree kom je direct in de woonkamer met zithoek en de open keuken. De woonkamer is bijzonder licht en ruimtelijk door de vele en grote raampartijen in combinatie met het hoge plafond. Middels een schuifpui kan je naar het aangrenzende ruime terras. De moderne keuken is voorzien van alle benodigdheden zoals een 4-pits gaskookplaat, afzuigkap, spoelbak, combimagnetron, koelkast inclusief vriesvak en een vaatwasmachine. In de lodge zijn 3 slaapkamers aanwezig. De ouderslaapkamer beschikt over een badkamer en suite. Deze is uitgerust met een inloopdouche, een wastafel, een toilet en een designradiator. De tweede en derde slaapkamers hebben beide 2 aparte bedden en zijn voorzien van handige kasten. De tweede badkamer is te bereiken vanuit de hal en heeft een douche en een wastafel. De hal geeft ook toegang tot een apart toilet met fonteintje en een bergkast met de witgoedaansluitingen.
Tuin
Rondom de woning ligt een verzorgde met gras ingezaaide tuin. In de op het noordoosten georiënteerde tuin kan je kan heerlijk vertoeven op het ruime terras aan de woning. Op het terras is ruimte voor zowel een gezellige loungeset als een grote eettafel. Parkeergelegenheid is voorzien op eigen terrein en op een algemene parkeerplaats.
Bijzonderheden
- Op korte afstand van Noordzeestrand (ca. 575 meter)
- Op korte afstand van centrumvoorziening met zwembad (ca. 500 m)
- 3 slaapkamers, 2 badkamers
- Noordoostelijke oriëntatie
- Volledig geïsoleerd
- Kunststof kozijnen met HR++ beglazing
- Verwarming luchtwarmtepomp, warm water middels elektrische boiler
- Zonnepanelen
- Parkeergelegenheid op eigen terrein en algemene parkeerplaats
Vraagprijs € 325.000, - kosten koper/ incl. inventaris
Restant btw-herzieningstermijn wordt verlegd.
- Op korte afstand van centrumvoorziening met zwembad (ca. 500 m)
- 3 slaapkamers, 2 badkamers
- Noordoostelijke oriëntatie
- Volledig geïsoleerd
- Kunststof kozijnen met HR++ beglazing
- Verwarming luchtwarmtepomp, warm water middels elektrische boiler
- Zonnepanelen
- Parkeergelegenheid op eigen terrein en algemene parkeerplaats
Vraagprijs € 325.000, - kosten koper/ incl. inventaris
Restant btw-herzieningstermijn wordt verlegd.
Kenmerken
| Overdracht | |
|---|---|
| Referentienummer | 00772 |
| Vraagprijs | € 325.000,- k.k. |
| Elektra | € 35,- |
| Water | € 25,- |
| Inrichting | Ja |
| Inrichting | Gemeubileerd |
| Status | Onder bod |
| Aanvaarding | In overleg |
| Aangeboden sinds | Dinsdag 20 januari 2026 |
| Laatste wijziging | Maandag 26 januari 2026 |
| Bouw | |
|---|---|
| Type object | Woonhuis, bungalow, vrijstaande woning |
| Soort bouw | Bestaande bouw |
| Bouwperiode | 2022 |
| Dakbedekking | Gewalst materiaal Metaal |
| Type dak | Zadeldak |
| Keurmerken | Energie prestatie advies |
| Isolatievormen | HR-glas Volledig geïsoleerd |
| Oppervlaktes en inhoud | |
|---|---|
| Perceeloppervlakte | 610 m² |
| Woonoppervlakte | 60,1 m² |
| Woonkameroppervlakte | 22,92 m² |
| Keukenoppervlakte | 2,1 m² |
| Inhoud | 225 m³ |
| Indeling | |
|---|---|
| Aantal bouwlagen | 1 |
| Aantal kamers | 4 (waarvan 3 slaapkamers) |
| Aantal badkamers | 2 (en 1 apart toilet) |
| Locatie | |
|---|---|
| Ligging | Aan rustige weg Dichtbij openbaar vervoer Open ligging Platteland |
| Tuin | |
|---|---|
| Type | Tuin rondom |
| Hoofdtuin | Ja |
| Oriëntering | Noord-oost |
| Staat | Normaal |
| Energieverbruik | |
|---|---|
| Energielabel | A++++ |
| Uitrusting | |
|---|---|
| Aantal parkeerplaatsen | 1 |
| Warm water | Elektrische boiler |
| Verwarmingssysteem | Warmtepomp |
| Ventilatie methode | Mechanische ventilatie Natuurlijke ventilatie |
| Badkamervoorzieningen Badkamer 1 | Inloopdouche Wastafel |
| Badkamervoorzieningen Badkamer 2 | Inloopdouche Toilet Wastafelmeubel |
| Heeft kabel-tv | Ja |
| Tuin aanwezig | Ja |
| Beschikt over een internetverbinding | Ja |
| Heeft een schuifpui | Ja |
| Heeft zonnepanelen | Ja |
| Heeft ventilatie | Ja |
| Kadastrale gegevens | |
|---|---|
| Kadastrale aanduiding | Oostburg V 2939 |
| Perceeloppervlakte | 610 m² |
| Omvang | Geheel perceel |
| Eigendomsituatie | Eigen grond |